730 005 027, 515 700 208
Kisielewskiego 9, 59-300 Lubin
has@nieruchomosci-lubin.pl

Nowe domy w Lubinie, centrum miasta

415.900 zł

Opis

Nowoczesna inwestycja która pozwoli Państwu zamieszkać w komfortowych warunkach w centrum miasta!


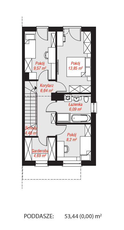
Dom przy ul. Cedrowej w zabudowie szeregowej, z poddaszem użytkowym.

Rozkład pomieszczeń:

– parter: salon, sypialnia, toaleta, garaż,

– poddasze: 3 pokoje, łazienka, garderoby,

Powierzchnia domu: 87,49 m², (bez garażu), powierzchnia garażu: 16,93 m².

W galerii zdjęć zestawienie powierzchni działek oraz adekwatnie cen budynków.

Genialna lokalizacja: osiedle Polne, blisko centrum, przystanki komunikacji miejskiej, punkty usługowe.

Technologia i konstrukcja ściany: pustak ceramiczny Porotherm 19 cm, styropian Termo Organika 20 cm, tynk; strop: płyta żelbetowa; ścianka kolankowa: 232 cm; dach: dwuspadowy, nachylenie 30 stopni, więźba drewniana, blacha; kocioł: gazowy. Media: kanalizacja i wodociąg miejski oraz prąd podciągnięte do budynku. Wybrukowany ciąg pieszo-jezdny z dojściami do domu.

Ogrzewanie- pompa ciepła w wyjątkowej cenie, dopasowanej specjalnie na potrzeby osiedla!

Zapraszam na prezentację- kupujący nie ponosi kosztów podatku PCC. Zakup od sprawdzonego dewelopera.

  • ID: 7783
  • Opublikowano: 2021-07-16 16:37:25
  • Aktualizowano: 2021-07-16 16:37:25
  • Wyświetlenia: 1692